このページを印刷する

オーパスホームズ大泉学園Ⅰ 1101号室の印刷画面

[お問合せ番号] 25215

情報更新日:2026年04月24日 NEW

ここがポイント
  • 駅徒歩4分の好立地で買い物もラクラク♪
  • 上階で日当たり・眺望良好♪
  • バスルームに窓付きやトイレに手洗い場など
  • 駐輪場・敷地内ゴミ置き場完備♪
  • 室内設備は下記を参照下さい♪
最寄り駅 徒歩
住所
賃料
管理費・共益費
敷金
礼金
面積
間取り
種別
築年月
向き
西武池袋線 『大泉学園駅』 徒歩4分
東京都練馬区東大泉3丁目
17.1万円
0.9万円
敷:なし
礼:なし
仲:1.1ヶ月
専:40.63㎡
間取り:1LDK
マンション
2023年月
南西
駅近&築浅のペットと暮らせるマンション
  • 駅近&築浅のペットと暮らせるマンション
  • ペットと共に住める1LDKタイプ
  • エアコン完備(洋室&LDK)
  • 11階のため眺望も◎
  • 南西向きで採光も期待できるバルコニー
  • シューズBOX
  • シューズBOX付きの玄関ホール
  • 玄関ホールには人感センサー付き照明完備
  • モニターフォン&床暖房完備
  • リビングの作業台はリモートワークのしやすい環境
  • ベッドルームにクローゼット完備
  • 独立洗面台には三面鏡付き
  • 手洗場の付いたリラックスできるトイレ
  • 二面採光の洋室
  • 窓付きで高級感のあるパネルのあるバスルーム
  • 収納多数の使いやすいキッチン
  • 木目調のフローリングが綺麗なリビング
物件名 オーパスホームズ大泉学園Ⅰ 1101号室
所在地 東京都練馬区東大泉3丁目
交通 西武池袋線 『大泉学園駅』 徒歩4分 /西武池袋線 『保谷駅』 徒歩25分 /西武新宿線 『上石神井駅』 徒歩39分
賃料
(管理費・共益費)
17.1万円(0.9万円) 敷金/礼金
仲介手数料
敷:なし/ 礼:なし/ 仲:1.1ヶ月
その他料金 【退去時】エアコン清掃費:1台あたり:16500円(税込み)、【入居時】ペット飼育時の敷金積増分:183000円(非課税)、初回保証料:総額賃料の40%
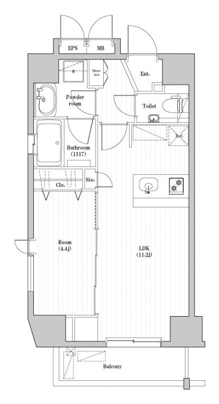
間取り 1LDK 間取り詳細 LDK11.2・洋室4.4 専有面積 40.63㎡
種別/構造 マンション/RC(鉄筋コンクリート) 階部分/階建て 地上11階部分/地上14階建て 方位 南西
築年月 2023年月 入居可能日 保険 損保有り・指定有り 2.2万円/2年
駐車場
バイク置き場 駐輪場 有り
鍵交換代 2.75万円 保証委託料
設備 バス・トイレ別|追焚機能付き|浴室乾燥機|室内洗濯機置場|洗面所独立|シャンプードレッサー|温水洗浄便座|暖房便座|エアコン付き|エアコン数:2基|床暖房|クローゼット|シューズボックス|BSアンテナ|CS110°アンテナ|インターネット接続料金:無料|ガスコンロ対応|ガスコンロ二口設置済み|システムキッチン|カウンターキッチン|グリル|フローリング|バルコニー付き|オートロック|TVモニタ付きインタホン|防犯カメラ|宅配ロッカー|エレベーター|エレベーター数:1基|駐輪場有り|
条件 2人入居:可|ペット:相談可|保証会社利用:可|
備考 ショッピングセンター:Grand Emio大泉学園(271m)、ショッピングセンター:ゆめりあフェンテ(467m)、コンビニ:ローソン練馬東大泉一丁目店(153m)、コンビニ:ファミリーマート大泉学園駅北店(206m)、ドラッグストア:トモズ大泉学園店(222m)、ホームセンター:Can★Do大泉学園店(175m)、郵便局:練馬東大泉三郵便局(139m)、病院:大泉ココ動物病院(450m)
更新日 2026年04月24日 情報有効期限 2026年05月08日
お問合せ番号 25215 取引形態 業者付け

※各種情報と現状に差異がある場合は、現状優先となります。

株式会社 大泉学園ハウジング 

0120-919-327

東京都練馬区東大泉1-35-15 かまるやビル1階
営業時間:10:00~19:00  定休日:毎月第二・第四火曜日、毎週水曜日(祝日の場合は営業)
東京都知事(4)87662号

物件詳細へもどる